Carrington 22 is a completed residential development located in the center of Kyrenia, North Cyprus. Built in 2018 and comprising 38 apartments within a 7-storey block, the project offers practical 1 and 2 bedroom layouts designed for comfortable urban living.
Positioned just 2 km from the Mediterranean coastline and within walking distance of supermarkets, public transport, schools, and essential city services, Carrington 22 provides immediate usability and strong year-round rental demand in one of Kyrenia’s most established residential zones.
City Center Apartments in Kyrenia with Strong Year Round Rental Demand
City Center Apartments in Kyrenia with Strong Year Round Rental Demand.
Carrington 22 is a completed residential development located in central Kyrenia, North Cyprus, on Şehit Orhan Durusoy Street. Built in 2018, the project consists of 38 apartments within a single 7-storey block designed for practical city living and long-term rental performance.
Positioned 2 km from the sea and within walking distance of supermarkets, restaurants, public transport, and key city services, Carrington 22 offers immediate usability and a stable investment profile in one of Kyrenia’s most established urban locations.
Project Location
Carrington 22 is located in Kyrenia city center, providing fast access to daily needs and major points of the city. The project is 700 meters from public transport connections and close to schools, hospitals, and municipal services.
Key distances include:
• Sea and coastline: 2 km
• Kyrenia Municipality: 1 km
• Akçiçek Hospital: 2.5 km
• Kyrenia Harbour: 3.5 km
• University of Kyrenia: 4 km
• English School of Kyrenia: 5 km
• Ercan International Airport: 46 km
• Larnaca International Airport: 79 km
This location supports consistent year-round demand from residents, professionals, and long-term tenants.
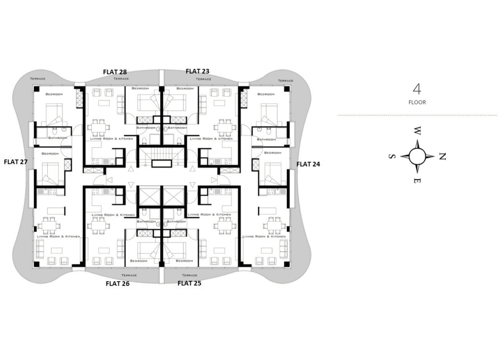
Architectural Concept and Living Spaces
Carrington 22 consists of one 7-storey block with 38 apartments, including open and covered parking and elevator access. The project offers a focused selection of functional urban layouts designed for comfortable everyday living.
Available unit types include:
• 1 bedroom apartments
• 2 bedroom apartments
Select units also benefit from generous terrace areas, providing additional outdoor space within a city setting.
On Site Features
Carrington 22 is planned as a practical city residence with essential infrastructure for daily living:
• Open and covered parking
• Elevator access
• Central city location with walkable amenities
Investment Potential and Rental Appeal
Kyrenia city center remains one of North Cyprus’ most resilient rental markets due to constant demand from local residents, university-related tenants, and professionals working in the city.
As a completed project in a high-demand urban zone, Carrington 22 provides immediate rental activation potential, stable occupancy outlook, and long-term value security supported by limited new supply in central Kyrenia.
Developer
Carrington 22 is developed by Carrington Group, a trusted family-run property developer with over 30 years of experience delivering residential projects across North Cyprus.
We focus on strategic location selection, construction quality, and disciplined project delivery. All developments are supported by a 5-year structural warranty and a strong commitment to customer satisfaction and long-term property value.
Summary
Carrington 22 is a completed residential development located in central Kyrenia, North Cyprus. Built in 2018 and comprising 38 apartments within a 7-storey block, the project offers functional 1 and 2 bedroom units designed for practical city living.
Situated just 2 km from the Mediterranean coastline and within walking distance of supermarkets, public transport, schools, and hospitals, Carrington 22 provides strong year-round rental demand and immediate usability. With its central location and 1-year interest-free payment plan, it represents a stable opportunity for both residential buyers and investment-focused purchasers.
Features
- Open and covered parking
- Elevator access
- Central city location with walkable amenities
- Prime city-center location in Kyrenia
Gallery





Location
Payment Plan
Carrington 22 offers a flexible payment structure for buyers seeking a completed apartment in central Kyrenia. A 5,000 GBP, EUR, USD, or cryptocurrency deposit secures the reservation for 4 weeks. Upon contract signature, a 50 percent down payment is required, and the remaining 50 percent can be paid over 1 year through an interest-free installment plan.
This short-term interest-free model allows buyers to secure a ready city-center property without relying on traditional bank financing.
Why Invest?
Carrington 22 is located in central Kyrenia, one of North Cyprus’ most stable and consistently demanded urban rental markets. Its proximity to supermarkets, public transport, universities, schools, and business districts ensures strong year-round occupancy from students, professionals, and long-term residents.
As a completed project just 2 km from the Mediterranean coastline, Carrington 22 offers immediate rental activation potential and long-term value stability in a limited-supply city-center location. Its practical layouts and strategic positioning make it a well-balanced asset for investors seeking predictable rental performance.
Get Special Offer
Fill out the form below to claim your special offer and get the latest price list, floor plans, and payment terms.







